The Good Old Days
There's something about 85 Oyster Drive that takes you straight back to the kind of summers you remember as a kid. Long, sun-soaked days on the water, sandy feet on the deck, the smell of the BBQ drifting through the air, and a house full of laughter as friends and family gather without a care in the world.
Set beside the Purangi Estuary reserve in one of the area's most tightly held pockets, this classic two-storey bach is all about location, lifestyle, and reliving those simple pleasures. With the reserve just beyond your backyard and the boat ramp only a minute away, your days here revolve around tides, fishing, swimming, and exploring.
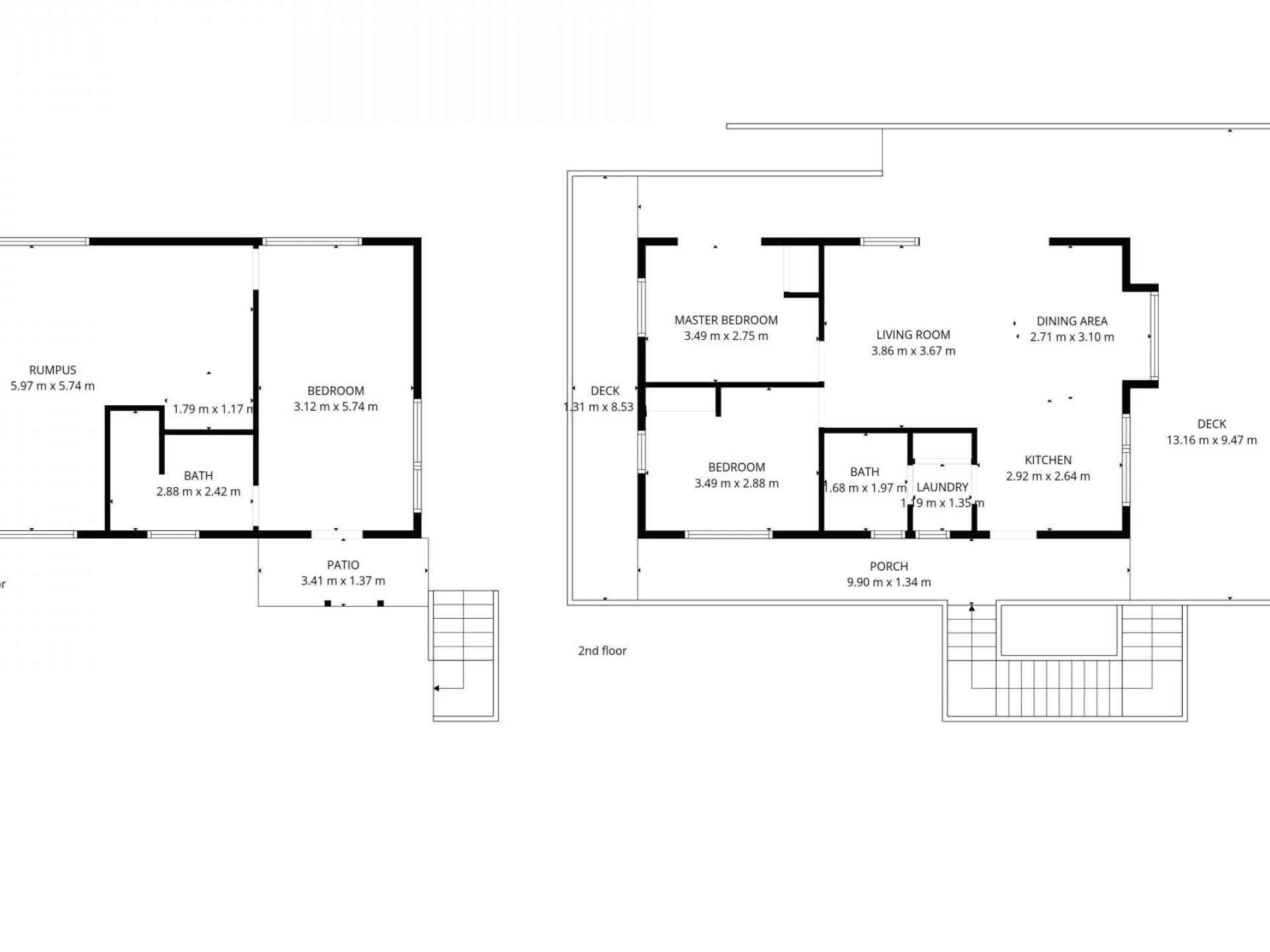
Upstairs is the heart of the home—an original, honest bach that's been well loved over the years. The open plan kitchen, dining (complete with bay window), and living area create a warm, communal space where everything flows easily from one to the next. Two double bedrooms sit off the living, while the kitchen leads through a walk-through laundry to a combined bathroom. Step out from the living room onto expansive wraparound decks and you'll find yourself chasing the sun from morning coffee through to evening drinks, with peaceful rural views as your backdrop.
And it's easy to picture what those evenings look like—platters on the table, music playing, stories being told as the sun drops and the kids run barefoot across the lawn.
Downstairs is where the magic of family holidays really comes to life. A converted bunk room, rumpus lounge, and second bathroom create the ultimate sleepover zone—cousins piled in, movies playing late, and memories being made that last a lifetime.
The flat 811sqm section is just right—room for tents, backyard cricket, and space to park the boat out the back after a day on the water.
This is a bach that's been enjoyed exactly as it should be. Yes, it could do with a little love, but that's part of the charm—the opportunity to make it your own while holding onto everything that makes it special.
Because Cooks Beach is a place that still feels like it used to. Kids riding bikes until dark, fishing off the jetty, learning to kayak on the estuary… a slower pace, a simpler time.
And homes like this, where so many memories have already been made don't come along often.

























