Split-Level Family Living with Views and Lifestyle
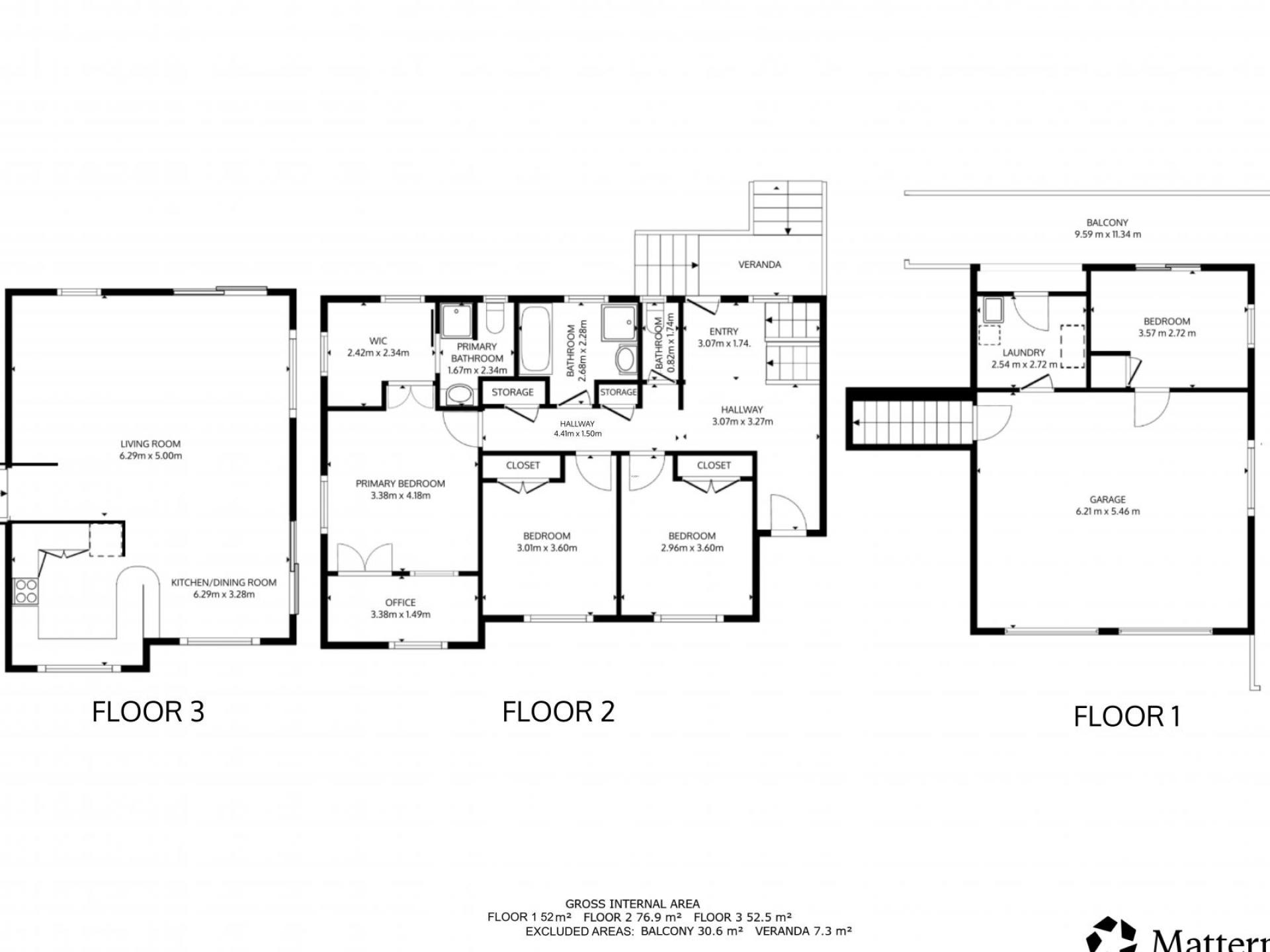
Positioned to capture sweeping views over Thames & across to the Firth, this spacious 181m2 split-level family home offers room to grow while still being conveniently located close to town.
An impressive entry welcomes you into the home before it branches into three distinct areas — the bedroom wing, the open-plan living space, and the lower level with additional family and utility areas.
The upper-level features open-plan living with high ceilings that create a wonderful sense of light and space. A modern kitchen sits at the heart of this area, ideal for family living and entertaining, with easy flow to wrap-around decks where you can enjoy the outlook across the property and towards the sea.
The separate bedroom wing includes three spacious bedrooms, all with generous storage. The master suite is tucked privately away and features an ensuite, walk-in wardrobe and a dedicated office with its own separate access outside — ideal for working from home. A family bathroom with separate toilet services the remaining bedrooms.
Downstairs adds even more flexibility with a double garage, laundry with access out to the garden, and an additional bedroom.
Set on a large 2,372m² section, the property offers the space of a lifestyle block while still being close to town. The grounds include established fruit trees and are currently home to a few sheep — including the family pet sheep, Axel.
With wrap-around decks, wide views and generous indoor and outdoor space, this property offers a great balance of lifestyle living and everyday practicality.





































