Step Right Up To The Property Ladder
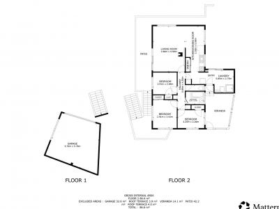
Welcome to your first home—a delightful opportunity to step onto the property ladder! Elevated to capture lovely views, this inviting residence features a beautiful back garden. Also featuring a good sized garage. You can take advantage of the convenient location—just a short stroll to the local primary school and under 3km to town. Move in and make it your own, with plenty of potential to add your personal touch and truly make this home shine.






























