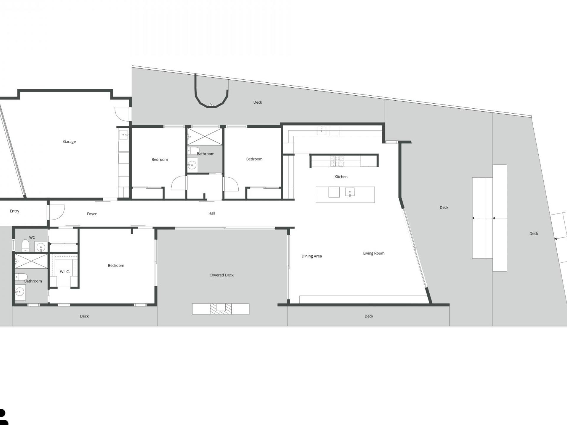
ARCHITECTURAL SIMPLICITY, COASTAL FUN
Oh wow......check this out!
Right on the Pauanui Waterways, and the indoor-outdoor flow is just amazing.....wraparound decks, fully landscaped gardens.....it's like the whole house just breathes summer!
Three bedrooms, tons of space to hang out, and everything's designed to be fun and easy. Imagine boating, water sports, or just kicking back on the deck with family and friends - it's just effortless. Seriously, this place feels warm, stylish, and so...Kiwi. Modern, simple, but every corner just makes you want to relax and live the beach life. "I could move in today!"
Deadline Sale - 9th March 2026 - 4pm (unless sold prior)






























